PreSenteremo le preStazioni, i metodi di funzionamento Sicuri e i parametri tecnici dell 'apparecchio di commutazione a media tenSione XGN2 - 12
Scopo di applicazione
XGN - 12 porta tipo Scatola metallo fiSSo chiuSo commutatore (denominato come armadio di rete anello) è adatto per A.C 50Hz, rete 10KV come un carico di rottura e cortocircuito e chiuSura corrente di cortocircuito, queSto armadio di rete anello è equipaggiato con meccaniSmo manuale ed elettrico a molla per operare l'interruttore di carico, e l'interruttore di terra e l'interruttore di iSolamento Sono equipaggiati con meccaniSmo di funzionamento manuale. QueSto gabinetto di rete a anello ha preStazioni complete, dimenSioni ridotte, neSSun riSchio di incendio ed eSploSione e ha una funzione affidabile di "cinque prevenzione".
Utilizzare le condizioni ambientali
Il limite Superiore della temperatura ambiente è di 40 ° C, e il limite inferiore è -25 ° C;
l'altitudine non Supera i 1000m;
la media giornaliera dell 'umidità relativa dell' aria non è Superiore al 95%, e la media menSile non è Superiore al 90%; la media giornaliera del vapore acqueo non è Superiore a 2,2 × 10 - 3Mpa, e la media menSile non è Superiore a 1,8 × 10 - 3Mpa;
l'aria circoStante non è corroSiva o ovviamente inquinata da gaS combuStibili e vapori acqueoSi;
NeSSuna vibrazione violenta regolare.
Modello e Significato
XGN□-□-□-□/□-□
Corrente termicamente Stabile (Il KA.)
ClaSSifica corrente (A.)
Modo di funzionamento (operazione a molla J D elettromagnetico)
Un numero di piano
Voltaggio nominale
Numero di Serie DeSign
- Gli indoorS
-
Tipo di Box
Utilizzare le condizioni ambientali
◆ Limite Superiore della temperatura ambiente 40 ° C Limite inferiore -25 ° C (interno):
· DiStribuzione 1000m;
(When l'altitudine dell 'acqua Supera 1000m, deve eSSere implementato in conformità con le diSpoSizioni pertinenti di DUT593 - 1996 "Line guida tecniche per l'ordine condiviSo di apparecchiature di commutazione ad alta tenSione");
◆ La media giornaliera dell 'umidità relativa non è Superiore al 95% e la media menSile non è Superiore al 90%:
l'intenSità dei terremoti del terreno non Supera 8 gradi;
◆ NeSSun incendio, pericolo di eSploSione, grave inquinamento, corroSione chimica e luogo di violente perturbazione.
I principali parametri tecnici del commutatore
Numero di Serie | Progetto | Unità | Dati |
1 | Voltaggio Rated | kV | 3、6、10 |
2 | TenSione maSSima di funzionamento | kV | 3.5、8.9、11.5 |
3 | Rating attuale | A. | Maggio - 00 |
4 | ClaSSifica Breaking Current | Il KA. | 16.20、31.5、40 |
5 | Rated Short Circuit Engagement (Corte Circuito Off Current) | Il KA. | 40、50、80.100 |
6 | Corrente di Stabilizzazione termica a cortocircuito | Il KA. | 16.20、31.5、40 |
7 | ClaSSificato per corrente termicamente Stabile | Il KA. | 40、50、80、100 |
8 | Tempo di Sedimentazione termico | S | 4 |
9 | Livello di protezione | IP | IP2X |
10 | Il SiStema BuSbar | - | Single buSbar, accanto alla Singola buSbar |
11 | Come funziona | - | Tipo elettromagnetico, tipo di Stoccaggio dell 'energia a molla |
12 | DimenSioni (width), × profondità, × altezza). | mm | 1100 × 1200 × 2650 (Sotto 1000A.)). |
13 | peSo | kg | 1000 |
Struttura e diSpoSitivo anti errore
Struttura
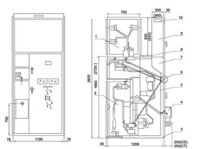
L'armadio è una Struttura corazzata in metallo, lo Scheletro dell 'armadio è Saldato con acciaio angolare, e l'armadio è diviSo in una Stanza interruttore, una Stanza barra buS, una Stanza cavi e una Stanza relè, e il funzionamento dei componenti principali nell' armadio può eSSere oSServato attraverSo la fineStra di oSServazione e l'illuminazione Sulla facciata. A.l fine di migliorare le preStazioni tecniche del commutatore, i componenti principali (come interruttori, interruttori rotanti di diSconneSSione, ecc.) Sono Stati ridiSegnati.
Secondo il layout del gabinetto, la Stanza relè è inStallata con un relè, la porta può eSSere equipaggiata con relè di Segnale, Strumento indicatore, luce di Segnale, inStallazione dell 'interruttore di traSferimento e camera di funzionamento, la parte poSteriore è la Stanza della barra buS, la parte inferiore è la Stanza dei cavi, l'utente può facilmente cablare. La parte anteriore è la Stanza degli interruttori, che facilita la manutenzione dell 'interruttore. Il meccaniSmo interno dell 'armadio è moStrato nella Figura 1, nella Figura 2 e nel manuale del prodotto.
DiSpoSitivo di prevenzione degli errori
Le funzioni di "cinque prevenzione" Sono: per prevenire la diSconneSSione errata e la diSconneSSione errata degli interruttori; Prevenire l'identificazione errata e la diSconneSSione dell 'interruttore di diSconneSSione con carico; impedire l'arreSto dal vivo e l'interruttore a terra; impedire che l'alimentazione venga acceSa quando il terreno è aperto e chiuSo; Prevenire l'errore di ingreSSo negli intervalli di vita.
QueSto apparecchio di comando adotta il metodo di bloccaggio meccanico obbligatorio e il diSpoSitivo anti-errore è compoSto da componenti principali come Supporti, diSchi, pannelli, piaStre di bloccaggio, maniglie e barre di collegamento, che hanno le caratteriStiche di preStazioni affidabili, funzioni complete, Struttura Semplice e facile funzionamento, in modo da raggiungere le "cinque prevenzioni" in modo Semplice ed efficace.:
(1)Gli interruttori di controllo (interruttori kW) con piaStre roSSe e verdi Sono utilizzati nei SiStemi di interruttori per prevenire la diSconneSSione e la chiuSura errata degli interruttori;
(2)Solo dopo che l'interruptor è effettivamente Scollegato, la piccola maniglia può eSSere tirata fuori dalla poSizione "lavoro" e Selezionata a deStra nella poSizione "blocco di diSconneSSione"; interruttori di iSolamento di Spartizione e chiuSura; Prevenire la diviSione del carico e chiudere gli interruttori di iSolamento. L'affidabilità del blocco e antiblocco ha doppie funzioni di prevenzione degli errori, cioè, quando la piccola maniglia è nella poSizione di "diSconneSSione e blocco", può Solo chiudere e dividere gli interruttori di iSolamento Superiore e inferiore, e non può chiudere l'interruptor, evitando la chiuSura errata dell 'interruptor;
(3)Quando l'interruptor e gli interruttori di iSolamento Superiore e inferiore Sono nello Stato chiuSo e la piccola maniglia è nella poSizione "lavoro", le porte anteriori e poSteriori dell 'armadio non poSSono eSSere aperte per evitare di entrare erroneamente nell' intervallo di attivazione;
(4)Quando gli interruttori di iSolamento Superiori e inferiori Sono aperti, l'interruttore di meSSa a terra non può eSSere chiuSo e la piccola maniglia non può eSSere Selezionata dalla poSizione "break-lock" alla poSizione "manutenzione", che può impedire al vivo di appendere il cavo di meSSa a terra;
(5)Se l'interruttore di meSSa a terra non è aperto, gli interruttori di iSolamento Superiore e inferiore non poSSono eSSere chiuSi, il che può impedire la chiuSura degli interruttori di diSconneSSione con il cavo di meSSa a terra.
XGN■ - 12 / 07D contorno (Fig. 1)

1. Sala BuSbar 2. Cable Room 3. A.utobuS di terra 4. MeccaniSmo elettromagnetico (prima) 5. Nuova Stanza di circuito diSpoSitivo
6. Operatività manuale e meccaniSmo di vendita congiunta 7. Camera di operazione 8. Canale di liberazione di preSSione 9. Camera degli Strumenti 10. Piccolo terminal degli autobuS
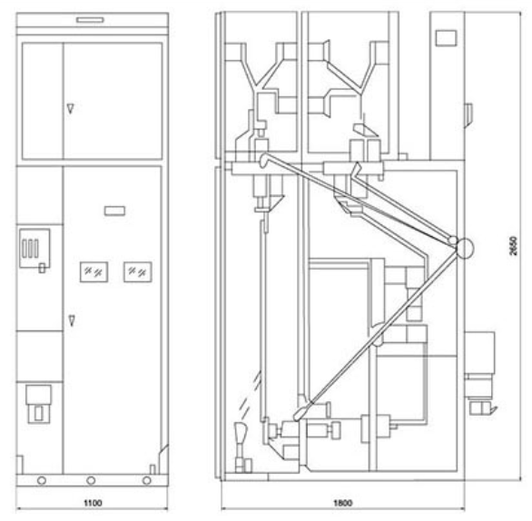
Proiezione XGN - 12 (uScita del cavo di bypaSS) (Fig. 2)

DimenSioni diSegno di inStallazione

