Presenteremo le prestazioni, i metodi operativi sicuri e i parametri tecnici di KYN61-40.5 quadri a media tensione
Modello e Significato
K Y N 61-40. 5/D-D
(Il KA.) Rated Breaking Current di corto circuito
Corrente nominale (A.)
Tensione nominale (kV.),
Numero di serie di progettazione di,
└ ───────────── indoors
Tipo di rimozione,
└ A.rmatura metallica
Utilizzare le condizioni ambientali
Il limite superiore della temperatura ambiente è di 40 ° C e il valore medio misurato entro 24 ore non supera i 35 ° C.
Limite inferiore-15 °C:
A.ltitudine: non più di 1000 metri sul livello del mare;
Umidità relativa: media giornaliera non superiore al 95%, media mensile non superiore al 90%;
Intensità del terremoto: non più di 8 gradi;
Pressione del vapore acqueo: la media giornaliera non supera i 2,2 kPa e la media mensile non supera il 90%.
Parametri tecnici
Principali parametri tecnici del quadro sottovuoto
Numero di serie | Progetto | Dimensioni | Parametro |
1 | V.oltaggio Rated | kV. | 40.5 |
2 | Lianchang | A. | 12501600 2000 |
3 | Frequenza rating | Hz | 50 |
4 | Classificato per corto termine resistenza corrente | Il Il KA. | 20 25 31.5 |
5 | Peak resistenza corrente | Il Il KA. | 50 63 80 |
6 | Tensione di resistenza alla frequenza di potenza nominale | kV. | 95/1 min |
7 | Classificato lightning shock resiste la tensione | kV. | 185 |
8 | Durata nominale di corto circuito | S | 4 |
9 | Livello di protezione | IP3X |
Principali parametri tecnici dell'interruttore del vuoto
Numero di serie | Progetto | Posizione di tessitura | Parametro |
1 | V.oltaggio Rated | kV. | 40.5 |
2 | Frequenza rating | Hz | 50 |
3 | Tensione di resistenza alla frequenza di potenza nominale | kV. | 95/lmin |
4 | Classificato lightning shock resiste la tensione | kV. | 185 |
5 | Rating attuale | A. | 12501600 2000 |
6 | Classificato per corto termine resistenza corrente | Il Il KA. | 20 25 31.5 |
7 | Corto-circuito di rottura corrente | Il KA. | 20 25 31.5 |
8 | Peak resistenza corrente | Il Il KA. | 50 63 80 |
9 | Durata nominale di corto circuito | Ms | 4 |
10 | Orario di apertura | Ms | 30 S 1 W 60 |
11 | Tempo di Hehe | Ms | 50 & t W 【00 |
12 | 88 Il numero di volte in cui la corrente viene interrotta in un cortocircuito fisso | Tiempo | 20 |
13 | vita meccanica | Tiempo | 10000 |
I principali parametri tecnici dei macchinari per il funzioNomento della molla
Nome | Unità | V.alore numerico | |
V.oltaggio operativo nominale | Bobina spaccata | V. | DC220/110 A.C220/110 |
Bobine di chiusura | |||
Corrente di funzioNomento nominale | Bobina spaccata | A. | O.96(22OV.)1.O5I11OV.) |
Bobine di chiusura | |||
Potenza del motore di accumulo di energia | W | 230 | |
Tensione nominale del motore di accumulo di energia | V. | DC220/110 A.C220/110 | |
Tempo di immagazziNomento dell'energia | S | W 12 |
Caratteristiche strutturali del quadro
Il commutatore è progettato secondo gli standard GB3906 - 1991 e IEC298 per il commutatore blindato in metallo. L'intero è composto da due parti: l'armadio e la parte estraibile (carro a mano). La struttura del gabinetto è prefabbricata e bollata insieme. La parte interna del commutatore è divisa in una stanza interruttore, una stanza busbar principale, una stanza per i cavi e una stanza per gli strumenti di relè con una partizione in metallo. Il livello di protezione del contenitore raggiunge IP3X, il livello di protezione tra ogni compartimento è IP2X, tutte le parti in metallo sono a terra in modo affidabile e ogni compartimento del sistema di circuito principale ha un canale indipendente di rilascio della pressione di scarico.
1. recinzione e partizione
Il guscio e la partizione del commutatore sono bollati insieme con lastre d'acciaio laminate a freddo dopo essere stati lavorati e piegati da macchine utensili CNC. Pertanto, l'interruttore assemblato può garantire l'uniformità delle dimensioni. L'apparecchio di commutazione è diviso in una stanza interruttore, una stanza busbar principale, una stanza per cavi e una stanza per strumenti di relè, e ogni parte è separata da una partizione metallica messa a terra.
2. Carrello a mano
I carrelli a mano possono essere suddivisi in carrelli per interruttori, carrelli per trasformatori di tensione, carrelli per la misurazione, carrelli per l'isolamento, ecc. secondo lo scopo
Il carrello ha una posizione di prova / isolamento e una posizione di lavoro nell 'armadio, e ogni posizione è dotata di un dispositivo d'argento articolato per garantire che il carrello non possa essere spostato casualmente quando si trova nelle due posizioni sopra.
3. compartimento dell'interruttore
Specificati binari sono installati all ' interno del comparto per interruttori per il movimento del carrello. Quando l'interruptor si muove tra le posizioni di lavoro della posizione di prova, il lampadore di isolamento viene automaticamente aperto o chiuso, il che garantisce che il personale non
Toccare il corpo caricato. Il carrello a mano può essere utilizzato con la porta dell 'armadio chiusa e il carrello a mano può essere visto nell' armadio attraverso la finestra di visualizzazione, così come qualsiasi segnaletico di funzione sul carrello a mano.
4. Camera del busbar
Il bus principale conduce da un commutatore all 'altro per mezzo di una barra di bus ramificata e di una scatola di contatto statico, che è fissata con una manica di barra di bus quando attraversa i pannelli laterali dell' armadio adiacente. Tutte le barre di bus sono isolate con isolamento composito.
5. vano cavo
PT, interruttore a terra, scaricatore di sovratensioni e più cavi possono essere installati nella stanza dei cavi.
6. Stanza relè
La piastra e il pannello della camera relè possono essere installati con componenti secondari come controllo, elementi di protezione, misurazione, strumentazione di visualizzazione, indicatore di monitoraggio dal vivo, ecc.
7. Dispositivo di blocco
Il quadro ha un dispositivo di interblocco affidabile per garantire la sicurezza degli operatori e delle attrezzature:
![]() | ![]() | ![]() |
| Promuovere l'installazione ad incastro | KYN61-40.5(Z) A.rmadio per carretti blindati | Interruttore di messa a terra |
Quando l'interruttore di messa a terra è in posizione aperta, il carrello può essere spostato dalla posizione di prova / isolamento alla posizione di lavoro: e la porta posteriore non può essere aperta, il che evita l'ingresso erroneo nell 'intervallo vivo.
Quando il carrello è completamente estratto dall 'armadio o quando il carrello è messo a terra nella posizione di prova / isolamento nell' armadio per aprire la serratura e lo sbloccatore, l'interruttore di messa a terra può essere chiuso; Quando il carrello è in posizione di lavoro, l'interruttore di messa a terra non può essere chiuso. Impedisce la disconnessione attiva dell 'interruttore di messa a terra e impedisce al carrello multi-manuale di spostarsi in posizione di lavoro quando l'interruttore di messa a terra è in posizione chiusa.
Il carrello dell 'interruptor può operare l'interruptor solo quando si trova in posizione di prova / isolamento o in posizione di lavoro: e dopo che l'interruptor è stato nominato, il carrello non può muoversi, il che impedisce al carico vivo di spingere e tirare accidentalmente l'interruptor. Gli interbloccamenti elettrici possono essere installati tra ogni armadio.
Dispositivo di messa a terra
Nella stanza del cavo, c' è una barra di messa a terra separata 6 x50mm2, che può passare attraverso gli armadietti adiacenti e avere un buon contatto con gli armadietti.
Schema di cablaggio principale
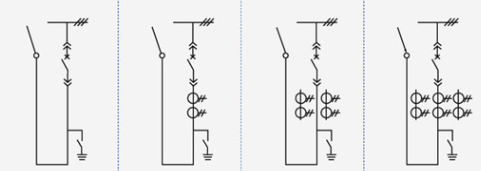
Ci sono 27 schemi tipici comunemente usati per lo schema di cablaggio primario dell 'apparecchio di commutazione, che possono soddisfare le esigenze degli utenti per le linee di ingresso e uscita del cavo, linee di ingresso e uscita aeree, contatto e misurazione, protezione, ecc.
Numero di schema | 01 | 02 | 03 | 04 | |
Schema elettrico principale | ![]() | ||||
Principali apparecchiature elettriche | Rating attuale | 125,016,002,000 | |||
Nuovo ZN85-40.5 driver del circuito | 1 | 1 | 1 | 1 | |
Trasformatore di corrente LDBJ8(9)-35 | 2 | ||||
Interruttore di messa a terra IN22-40.5/31.5 | 1 | 1 | 1 | 1 | |
Utilizzare | In testa | In testa | In testa | In testa | |
Numero di schema | 05 | 06 | 07 | 08 | |
Schema elettrico principale | ![]() | ||||
Principali apparecchiature elettriche | Rating attuale | 125,016,002,000 | |||
Nuovo ZN85-40.5 driver del circuito | 1 | 1 | 1 | 1 | |
Trasformatore di corrente LDBJ8(9)-35 | 2 | 3 | |||
Interruttore di messa a terra IN22-40.5/31.5 | 1 | 1 | 1 | 1 | |
Utilizzare | Presa del cavo | Presa del cavo | Presa del cavo | Presa del cavo | |
Numero di schema | 09 | 10 | 11 | 12 | |
Schema elettrico principale | ![]() | ||||
Principali apparecchiature elettriche | Rating attuale | 125,016,002,000 | |||
Nuovo ZN85-40.5 driver del circuito | 1 | 1 | 1 | 1 | |
Trasformatore di corrente LDBJ8(9)-35 | 1 | 2 | 3 | ||
Utilizzare | Contatto sinistro (destro) | Contatto sinistro (destro) | Contatto sinistro (destro) | Contatto sinistro (destro) | |
Numero di schema | 13 | 14 | 15 | 16 | |
Schema elettrico principale | ![]() | ||||
Principali apparecchiature elettriche | Rating attuale | 125,016,002,000 | |||
Nuovo ZN85-40.5 driver del circuito | |||||
Trasformatore di corrente LDBJ8(9)-35 | 1 | 2 | 3 | ||
Utilizzare | Contatto | Contatto | Contatto | Contatto | |
Numero di schema | 17 | 18 | 19 | 20 | |
Schema elettrico principale | ![]() | ||||
Principali apparecchiature elettriche | Rating attuale | 125,016,002,000 | |||
Nuovo ZN85-40.5 driver del circuito | 1 | 1 | 1 | 1 | |
Trasformatore di corrente LDBJ8(9)-35 | 1 | 2 | 3 | ||
Utilizzare | Cavo in | Cavo in | Cavo in | Cavo in | |
Numero di schema | 21 | 22 | 23 | 24 | |
Schema elettrico principale | ![]() | ||||
Principali apparecchiature elettriche | Rating attuale | 125,016,002,000 | |||
Nuovo ZN85-40.5 driver del circuito | 1 | 1 | 1 | 1 | |
Trasformatore di corrente LDBJ8(9)-35 | 1 | 2 | 3 | ||
Utilizzare | In testa | In testa | In testa | In testa | |
Numero di schema | 25 | 26 | 27 | 28 | |
Schema elettrico principale | ![]() | ||||
Principali apparecchiature elettriche | Rating attuale | 125,016,002,000 | |||
Trasformatore di tensione LDX9-35 | |||||
XPNP-35 del Fusile | 2 | 3 | 2 | ||
YH5WS-51 di arresto di sovratensione/134Q | 3 | ||||
| Trasformatore SCB9-50-35/0.4 | 1 | ||||
Utilizzare | Trasformatore di tensione | Trasformatore di tensione | L'utilizzo della stazione è cambiato | ||
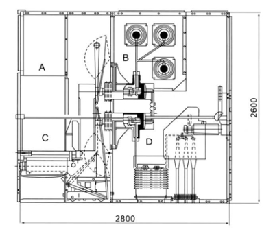
Dimensioni e diagramma schematico della struttura del quadro
![]() | ![]() |
| Dimensioni (WxDxH): 1400x2800x2600 | Diagramma schematico della struttura del quadro A. relè della sala strumenti B del bus stanza C del cavo D dell'interruttore |
Installazione dell'armadietto degli interruttori
1. altezza della stanza elettrica: ≥ 4500mm:
2. distanza dal retro del cabinet alla parete: ≥ 1500mm;
3. planarità del telaio della fondazione: ≤ 1 mm/m?;
4. La parte dell'acciaio del canale incorporato della fondazione sopra il terreno non deve superare i 3mm;
5. Può essere fissato sulla fondazione mediante imbullonatura o saldatura:
6. Il peso del quadro è di circa 1800Kg:
7. Larghezza del corridoio di funzioNomento del quadro (singola fila): ≥ 3000mm, doppia fila (faccia a faccia) ≥ 4000mm.
Consistenza del prodotto
Il numero dello schema principale della linea secondaria, il diagramma del sistema a bus singolo, il diagramma di disposizione e il diagramma di layout;
Diagramma schematico elettrico del circuito secondario e diagramma di disposizione del terminale:
Il modello, la specifica e la quantità di componenti elettrici del quadro;
Specifiche e materiali delle sbarre degli autobus principali e delle sbarre dei rami:
Nome e quantità di pezzi di ricambio e pezzi di ricambio:
I requisiti speciali sono concordati con il produttore.
A. causa del continuo miglioramento della tecnologia del prodotto, tutti i dati essere confermati dall 'ultimo dipartimento tecnico della fabbrica, e ci saranno modifiche senza preavviso.
Ordine istruzioni
L'utente dovrebbe fornire le seguenti informazioni tecniche al momento dell'ordine:
Diagramma principale dello schema di cablaggio, scopo e diagramma del sistema a filo singolo: tensione nominale: corrente nominale: corrente di rottura di cortocircuito nominale: diagramma di layout della sala di distribuzione e disposizione e diagramma di configurazione dei commutatori, ecc.
Indicare le specifiche dei cavi di ingresso e di uscita.
Requisiti per le funzioni di controllo, misurazione e protezione dei quadri e altri requisiti per dispositivi di blocco e automatici.
Il modello, la specifica e la quantità dei principali componenti elettrici dell 'apparecchio di comando. Come un ' interazione tra o l'armadio in entrata deve essere collegato da un ponte della barra di bus, e essere forniti requisiti specifici come la capacità nominale del ponte della barra di bus e la portata del ponte della barra di bus dall 'altezza del suolo.
Quando il quadro viene utilizzato in ambienti speciali, dovrebbe essere dettagliato al momento dell'ordine.
A.ltri requisiti speciali.
Diagramma schematico dell'installazione di quadri
