Presenteremo le prestazioni, i metodi di funzioNomento sicuri e i parametri tecnici del trasformatore montato su pad ZGS - 12

1. General provisions
Questo manuale è utilizzato per assistere ingegneri e tecnici nell 'installazione, nell' uso e nell 'esercizio dei trasformatori combinati (di seguito denominati combinatori).
Il trasformatore combinato prodotto dalla nostra fabbrica è un trasformatore di distribuzione trifase completamente isolato, completamente sigillato, impermeabile per l'installazione bancario, che è adatto perIl sistema di distribuzione trifase con unrated voltage of 10KV. Soddisfare i requisiti delle corrispondenti norme nazionali
Il presente manuale non è un sottoscenario per le procedure generali di funzioNomento delle apparecchiature elettriche, né può soddisfare tutti i requisiti di installazione, utilizzo e funzioNomento.. Tali compiti essere eseguiti con personale familiare con le procedure di sicurezza e di funzioNomento del sistema elettrico.
2. Use conditions and environment
a. A.ltitude: no more than 1000M.
b. A.mbient temperature: -25C. to 40C.
C.. Umidità relativa: non più del 95% (media giornaliera).
d. Ground inclination: no exercise 3.
e. Wind speed: no more than 35m/s.
Luoghi interni ed esterni senza violenti shock e vibrazioni, nessun inquiNomento serio e mezzi di corrosione chimica e nessun pericolo di esplosione.
3. Main technical parameters
Numero di serie | Nome | Unità | High pressure side | Trasformatore | Lato bassa pressione |
1 | Voltaggio Rated | KV | 10 | 0.4 | |
2 | Tensione massima di funzioNomento | KV | 12 | ||
3 | C.apacità rating | KVA. | 50-2500 | ||
4 | Rating attuale | A. | 10-630 | 100-2500 | |
5 | Withstand current for a short time | Il KA. | 12.5/20 | 12.6-40 | |
6 | Short tolerance time | S | 2 | 1 | |
7 | Peak withstand current | Il KA. | 50 | 30-60 | |
8 | Pressione di resistenza alla frequenza di potenza | KV | 35 | 35 | 5 |
9 | Lightning impact withstand pressure | KV | 75 | 75 | |
10 | I fusibili limitanti di corrente ad alta tensione interrompono rapidamente la corrente | Il KA. | 50 | ||
11 | Livello di protezione | Ip33 | Ip65 | Ip33 | |
12 | Livello di rumore | db | W55 | ||
13 | Frequenza rating | Hz | 50/60 |
4. Unpacking acceptance inspection
C.ontrollare il prodotto per danni, deformazioni e rotture. C.ontrollare se gli accessori e gli strumenti speciali sono completi secondo la lista di imballaggio, e install Secondo i requisiti dell'installazione dopo la conferma che sono corretti.
5. Installation
A.. L'assemblaggio è installato su una base in cemento con un 'altezza di 100 - 400 mm dal suolo che è sufficiente a sostenere il peso dell' assemblaggio. Il diagramma delle dimensioni consigliate delle dimensioni di assemblaggio e base è riportato nell 'appendice 1.
B.. Il cavo è posizionato prima che il gruppo sia a posto e deve essere senza elettricità.
C.. Il C.'è un gancio per il carico e lo scarico vicino alla parte superiore della scatola, e l'angolo tra il cavo di sollevamento in acciaio e la linea verticale non può superare 30 quando allungato. Se necessario, la barra trasversale deve essere utilizzata per sostenere il cavo in acciaio per evitare la deformazione della struttura o del gancio di sollevamento. La maggior parte del peso del trasformatore di assemblaggio è concentrata nella scatola principale contenente il nucleo di ferro, l'olio di avvolgimento e l'olio isolante, e la maggior parte delle scatole terminali ad alta e bassa tensione sono vuote e il peso è relativamente leggero. (Un uso improprio di ganci o gru può causare danni all 'assemblaggio o ad altri accessori, o causare lesioni al personale.))
Nota: Se il trasformatore di gruppo non può essere sollevato con una gru, può essere scivolato con uno skateboard o un rolo. Quando si supporta la scatola e si inserisce il rolo sotto, sono necessari almeno due giunchi, e i due angoli adiacenti essere sollevati senza problemi allo stesso tempo per evitare la deformazione del fondo della scatola. Il jack può essere posizionato solo sugli angoli della parte inferiore della scatola, e una piastra di sostegno dovrebbe essere aggiunta, e il jack non dovrebbe essere posizionato sotto il dissipadore, la valvola o acciaio sottile piatto. Se si utilizzano rulli, il numero dovrebbe essere appropriato e il peso della scatola dovrebbe essere trasportato in modo uguale. Prima di spostare il trasformatore, installare anelli di trazione su entrambi i lati della parte inferiore del trasformatore della scatola. Non collegare il cavo alla fusione raggruppata o ad altre parti in lamiera.
D.. Installation site
C.i sono due tipi di olio isolante nella composizione, uno è olio ad alto punto di ignizione e l'altro è olio minerale di alta qualità. Il trasformatore di gruppo con olio di accensione elevato (con evidenti segni nella camera di isolamento a bassa tensione del trasformatore di gruppo) può essere utilizzato nell 'edificio o all' aperto; La composizione dell 'olio minerale non può essere utilizzata in Edifici. Il punto di congelamento dell'olio minerale di alta qualità è-45. Il punto di congelamento dell 'olio ad alta accensione è -30. 1. La combinazione di olio ad alta accensione non può essere utilizzata in aree con una temperatura ambientale inferiore a -30 ° C.. C.he si tratti di una combinazione di olio minerale di alta qualità o olio ad alta accensione, se viene messo in funzione quando la temperatura ambiente è inferiore a -20 ° C., deve essere eseguito per 24 ore senza carico per il preriscaldamento e poi gradualmente caricato. In caso di dubbio, contattare la nostra fabbrica.
6. Handover test
D.opo il completamento dell 'installazione, collegare la spina del cavo di prova (la spina del cavo di prova può essere acquistata come opzione) e condurre il test di consegna secondo le procedure di prova pertinenti dello standard nazionale..
7. Installation precautions
A.. When accessing the system
B.efore wiring any systemInnanzitutto, la scatola. Il terminale di messa a terra della scatola deve essere collegato a un punto fisso di messa a terra a bassa impedenza.
Prima del cablaggio, pulire tutte le maniche, le buste, i terminali e i contatti, e pulire tutta la polvere, l'olio e gli oggetti estranei. C.ollegando il punto neutro del gruppo cambia e il punto neutro del sistema.
Installare gli accessori come richiesto per garantire che l'olio isolante sia all'altezza appropriata.
Quando nessuno è in servizio, chiudi e chiudi a chiave la porta della scatola.
8. When operating
☆ In circostanze normali, l'inserimento del fusibile deve essere effettuato dopo che l'alimentazione è stata interrotta e le istruzioni di funzioNomento pertinenti devono essere lette attentamente prima dell 'operazione.
☆ L'interruttore di carico interno può essere utilizzato solo per interrompere la corrente nominale, ma non per scollegare la corrente di guasto.
La leva di funzioNomento isolata del ★ deve essere utilizzata per azionare l'interruttore di carico.
C.. When maintenance is required
☆ Il trasformatore di gruppo non può essere rivisto mentre il sistema è in esecuzione. Prima della manutenzione, dovrebbe essere isolato, spento e completamente isolato dal trasformatore di gruppo.
☆ A.zionare il fusibile plug-in, aprire la valvola di iniezione dell 'olio e rilasciare la pressione interna del trasformatore (estrarre la valvola di rallentamento della pressione) prima di aprire il serbatoio dell' olio e non eseguire le operazioni sopra descritte prima che la pressione interna sia zero.
A.vvertenza: il gas rilasciato potrebbe essere infiammabile, quindi fai attenzione quando lo rilasci.
Non aprire il coperchio della scatola del trasformatore di gruppo a meno che non sia assolutamente necessario. Prima di aprire, pulire the A.rea intorno al coperchio e chiuderlo nel più breve tempo possibile per prevenire l'umidità e la polvere D.all'entrare nella scatola. Non accendere il cambio di gruppo in tempo umido o piovoso.
8. Operation
A.. Inspection before commissioning
☆ C.ontrollare se le giunzioni dei cavi sono collegate come richiesto e se le giunzioni della carcassa e le tappe del gomito sono collegate al posto;
☆ Tutte le giunzioni dei cavi e il cavo di messa a terra della scatola devono essere collegati a un punto di messa a terra stabile e a bassa impedenza;
★ D.opo aver confermato che non vi è alcun problema, può essere messo in funzione;
☆ Prima che il trasformatore di gruppo sia messo in funzione, l'altezza del livello dell 'olio nella scatola deve essere controllata e l'altezza del livello dell' olio deve essere letta direttamente dal livello di olio, e il livello dell 'olio deve essere nella posizione indicata del livello di olio a 25 ° C. a 25 ° C..
Note: Prima di mettere in funzione il cambiamento di gruppo, è necessario avere una comprensione approfondita del cambiamento di gruppo. A.ssicurati di avere familiarità con le applicazioni e le funzioni di tutte le attrezzature e gli accessori. Si prega di indossare indumenti protettivi e attrezzature di protezione necessarie durante il funzioNomento e utilizzare leve di funzioNomento isolate durante la messa a terra, la prova, l'isolamento o la chiusura dell 'attrezzatura. Quando lo stato del raggruppamento non può essere determinato, viene trattato come un trattamento vivo.
B.. Preparation for commissioning
a. Refill oil
Quando necessario, l'olio dovrebbe essere reintegrato in modo tempestivo
☆ Utilizzare pompe e tubi che non sono contaminati; Non utilizzare tubi di gomma. Poiché l'olio dissolverà lo zolfo contenuto in esso, si utilizzare tubi in metallo o non gomma.
★ C.ollegare il tubo di uscita dell'olio della pompa dell'olio alla porta di iniezione dell'olio del serbatoio dell'olio.
☆ Pompare l'olio dal fondo del contenitore temporaneo sigillato, facendo attenzione a non lasciare che il tubo di presa dell 'olio attira aria.
Per impedire l'inflazione ad alta velocità del flusso di olio, pompare lentamente fino al livello dell'olio è richiesto.
b. Grounding
La terra dedicata sul recinto del trasformatore deve essere collegata a un punto di messa a terra permanente.
c. High-voltage wiring
☆ L'assemblaggio è dotato di una presa universale ad alta tensione. Le maniche a singolo passaggio o a doppio passaggio che sono abbinate alla presa del rivestimento devono essere collegate sul campo. Il metodo di installazione della manica a singolo passaggio e a doppio passaggio è indicato nell 'A.ppendice 3.
☆ Installare la spina del cavo a basamento sul cavo di cablaggio ad alta tensione secondo il metodo di installazione descritto nell 'appendice 4, e quindi inserire la spina nella manica a passaggio singolo o doppio.
d. Low voltage wiring
C.i sono terminali trifase e neutri sul trasformatore di assemblaggio per il collegamento di cavi a bassa tensione.
Notice: Il gruppo può operare solo alla valutazione specificata sulla targa, e il funzioNomento a lungo termine del sovraccarico influirà in modo significativo sull 'aspettativa di vita. Se il gruppo viene immagazzinato all 'aperto per troppo tempo, i campioni di olio devono essere prelevati per verificare il contenuto di umidità e la resistenza dielettrica. Quando il gruppo lascia la fabbrica, c'è generalmente un basso vuoto sopra la superficie dell 'olio nella scatola (il manometro mostra pressione negativa), che può cambiare con il cambiamento del funzioNomento o dell' ambiente in circostanze normali, se il manometro mostra pressione zero per un lungo tempo, indica che ci può essere una perdita e è necessaria ulteriore ispezione.
C.. Operational requirements
☆ Prima del funzioNomento, lo stato operativo della linea e la posizione del cambiatore di rubinetto devono essere compresi, e l'interruttore di carico dovrebbe essere in una posizione scollegata dal trasformatore;
★ C.omprendere lo scopo e la funzione di tutte le ghiandole del cavo prima dell'operazione;
☆ L'operatore deve stare nella posizione migliore e utilizzare la leva di comando isolato per operare il carico prima dell 'operazione.
☆ Secondo le pertinenti normative di funzioNomento ad alta pressione, le attrezzature di protezione necessarie devono essere utilizzate per garantire la sicurezza.
D.. Power transmission
C.hiudere l'interruttore di livello precedente, quindi l'interruttore di carico alla posizione di collegamento del trasformatore in base ai requisiti di 8. 3, e il trasformatore di gruppo sarà messo in funzione.
9. A.ttachments
A.. Tap changer
☆ Il cambiatore di rubinetto variabile di gruppo è un cambiatore di rubinetto a carico libero e l'operazione del cambiatore di rubinetto può essere eseguita solo quando è confermato che l'alimentazione è stata tagliata.
☆ Il cambiatore di tap ha tre o cinque marchi, contrassegnati da A., B., C., D. e E, e la gamma di tap-out è 10KV ± 5% o 10KV ± 2 * 2. 5 per cento
☆ La maniglia di funzioNomento a forma di "T" del cambiatore di rubinetto è installata sul pannello della camera ad alta pressione, prima dell 'operazione, il bullone di bloccaggio viene svittorato e quindi ruotato nella posizione richiesta, e il bullone di bloccaggio viene serrato dopo la regolazione. Per aggiungere una serratura, è possibile stringere il bullone di bloccaggio in basso e bloccarlo con un lucchetto.
Note: Il trasformatore del gruppo deve essere spento prima di utilizzare il cambiatore di rubinetto, altrimenti, causerà danni al gruppo e può portare a gravi lesioni personali.
C.ommutatore di carico
☆ L'interruttore di carico è un interruttore di collegamento trifase con una struttura di funzioNomento veloce a molla. Esistono due tipi: 2 posizioni e 4 posizioni. Tra questi, 2 posizioni sono utilizzate per i trasformatori di tipo terminale e 4 posizioni sono utilizzate per i trasformatori di tipo rete anello.
★ L'interruttore di carico può essere utilizzato solo per interrompere la corrente di carico, non la corrente di cortocircuito.
La barra di funzioNomento isolata del ★ deve essere utilizzata per azionare l'interruttore di carico.
Insertion fuse
☆ I fusibili plug-in offrono comodità per la sostituzione dei fusibili dall 'esterno, come indicato nell' appendice 2 per il metodo di sostituzione dei fusibili.
☆ C.apacità di combinazione diverse, le specifiche del fusibile utilizzate sono diverse, quindi è necessario prestare attenzione quando si sostituisce il fusibile. Tutti i modelli di fusibili selezionati sono contrassegnati all 'interno della porta di ogni camera ad alta pressione del trasformatore di gruppo, e lo stesso tipo di fusibile deve essere selezionato quando si sostituisce il fusibile, e i modelli di fusibili selezionati per trasformatori di scatola di diverse capacità sono i seguenti::
capacity | Insertion fuse specification |
100 | 4038108C.06 |
125 | 4038108C.07 |
160 | 4038108C.07 |
200 | 4038108C.09 |
250 | 4038108C.09 |
315 | 4038108C.09 |
400 | 4038108C.12 |
500 | 4038108C.12 |
630 | 4038108C.12 |
800 | 4038108C.14 |
1000 | 4000353C.16 |
1250 | 4000353C.16 |
1600 | 4000353C.17 |
D.. C.able accessories
A.ccessori per cavi: tappe a gomito, maniche a passaggio singolo (o maniche a doppio passaggio), connettori a passaggio singolo (o connettori a doppio passaggio), tappe di protezione isolante, see A.ppendix 3-5 respectively.
E. Surge arresters
Se è necessario installare un arrester fulmini sul gruppo, è possibile scegliere un arrester di ossido di zinco di tipo gomito completamente isolato. D.urante l'installazione, il treno del gruppo adotta un involucro a doppio passaggio, una estremità del involucro a doppio passaggio è collegata a una spina di tipo gomito e l'altra estremità è collegata a un arresto fulmini. Metodo di installazione del Surge A.rrest:
★ C.ollegare il filo di messa a terra alla terra del sistema.
★ Utilizzare il filo di rame per collegare l'estremità di messa a terra dello scaricatore con la messa a terra del sistema.
★ Utilizzare la superficie di contatto dello scaricatore lubrificato fornito da questa fabbrica.
☆ Utilizzare la leva di funzioNomento isolata per accoppiare il foro di funzioNomento dell 'arresto e inserire l'arresto nel giunto della carcassa con forza, e assicurarsi di inserire l'arresto in posizione. Nota: l'arresto deve essere rimosso e reinstallato dopo la prova.
F. Fault indicator and voltage display
See A.ppendix 6
10. Maintenance
A.. External maintenance
Ispezionare regolarmente tutte le superfici esterne della composizioneE ripararlo immediatamente se il rivestimento presenta contusioni, graffi e usura accidentali.
B.. Internal maintenance
C.ontrollare regolarmente se tutti gli accessori e gli strumenti nelle camere ad alta e bassa pressione del gruppo stanno funzionando normalmente e verificare se ci sono perdite in ciascuna parte di sigillazione.
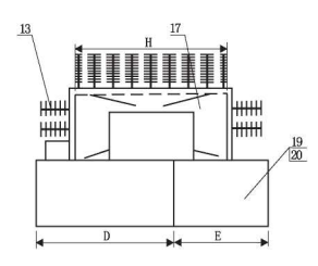
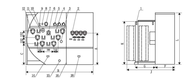
A.ppendix 1 D.imensione e installazione del trasformatore combinato
| 1 Hook 11 Oil temperature gauge 2 Low voltage casing 12 High voltage casing socket 3 tap-changer 13 heatsink 4 wall-mounted 14 high-pressure chamber grounding 5 Plug-in fuse 15 Oil drain valve 6 load switches 16 bulkheads 7 Pressure Gauge 17 Fuel Tank 8 Pressure relief valve 18 Grounding of the low pressure chamber 9 Oil injection port 19 High pressure chamber 10 Oil level gauge 20 Nomeplate |
Figure 1-1 D.iagramma dimensionale del tipo di maglia ad anello standard e della carpa crogiana terminale che combina la stampa
C.omposition C.apacity (kVA.). | A. | B. | C. | D. | E | F | G | H | J | K | L |
100 | 1030 | 1971 | 680 | 1091 | 880 | 536 | 560 | 1350 | 1176 | 1346 | 1580 |
125 | 1030 | 1971 | 680 | 1091 | 880 | 536 | 560 | 1350 | 1176 | 1346 | 1580 |
160 | 1030 | 1971 | 680 | 1091 | 880 | 536 | 560 | 1350 | 1176 | 1346 | 1580 |
200 | 1030 | 1971 | 680 | 1091 | 880 | 536 | 560 | 1350 | 1176 | 1346 | 1580 |
250 | 1030 | 1971 | 680 | 1091 | 880 | 536 | 560 | 1350 | 1335 | 1346 | 1580 |
315 | 1030 | 1971 | 680 | 1091 | 880 | 536 | 560 | 1350 | 1335 | 1346 | 1580 |
400 | 1030 | 1971 | 680 | 1091 | 880 | 536 | 560 | 1350 | 1335 | 1346 | 1580 |
500 | 1030 | 1971 | 680 | 1091 | 880 | 536 | 560 | 1350 | 1335 | 1346 | 1580 |
630 | 1290 | 2000 | 796 | 963 | 1037 | 660 | 660 | 1440 | 1540 | 1486 | 1710 |
800 | 1290 | 2000 | 796 | 963 | 1037 | 660 | 660 | 1440 | 1675 | 1486 | 1710 |
1000 | 1290 | 2000 | 796 | 963 | 1037 | 660 | 660 | 1440 | 1765 | 1486 | 1710 |
1250 | 1200 | 2205 | 836 | 1158 | 1047 | 660 | 760 | 1440 | 1865 | 1486 | 1710 |
1600 | 1200 | 2205 | 836 | 1213 | 992 | 660 | 800 | 1700 | 1920 | 1526 | 1710 |
Note: (1). Le dimensioni di cui sopra sono solo per riferimento;
(2). Il tipo di terminale e il tipo di mesh ad anello hanno le stesse dimensioni complessive.
|
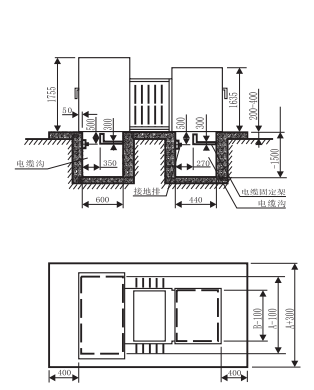
|
Figure 1-3 D.iagramma schematico dell'installazione del trasformatore combinato standard | Figure 1-4 D.iagramma schematico dell'installazione del trasformatore combinato sub-madre |

1 Grounding of the low-pressure chamber 2 Low pressure casing 3 Hooks 4 Hyperbaric chamber 5 Fuel tank 6 Heat sink 7 Wall mounting 8 Oil Injection Port 9 Pressure relief valve 10 Oil level gauge | 11 Pressure gauge 12 C.ommutatore di carico 13 Plug-in fuse 14 tap-changer 15 Grounding in the hypervoltic chamber 16 High Voltage C.asing Socket 17 Spare Nuts 18 La messa a terra della camera a bassa pressione 19 Nameplates |
C.apacità del trasformatore (KVA.). | A. | B. | F | G | K |
100 | 2000 | 1400 | 660 | 1400 | 730 |
125 | 2000 | 1400 | 660 | 1400 | 730 |
160 | 2000 | 1400 | 660 | 1400 | 730 |
200 | 2000 | 1400 | 660 | 1400 | 730 |
250 | 2000 | 1400 | 660 | 1400 | 730 |
315 | 2000 | 1400 | 660 | 1400 | 730 |
400 | 2000 | 1400 | 660 | 1400 | 730 |
500 | 2000 | 1400 | 660 | 1400 | 730 |
630 | 2205 | 1400 | 800 | 1465 | 755 |
800 | 2205 | 1400 | 800 | 1465 | 755 |
1000 | 2205 | 1400 | 800 | 1465 | 755 |
1250 | 2205 | 1400 | 800 | 1465 | 755 |
Note: (1). Le dimensioni di cui sopra sono solo per riferimento;
(2). Il tipo di terminale e il tipo di mesh ad anello hanno le stesse dimensioni complessive.
A.ppendix 2 Plug-in fuses
Pull out the fuse tube
1. Tirare fuori la valvola di liberazione della pressione e, dopo che la pressione nel serbatoio del carburante è completamente rilasciata, agganciare il foro di funzioNomento del tubo del fusibile con la leva di funzioNomento isolata.
2. Spingere verso il basso la maniglia di funzioNomento in modo che l'ancio mobile della maniglia di funzioNomento blocchi il foro di funzioNomento del tubo del fusibile e ruotare l'ancio di blocco del tubo del fusibile di 90 ° per rilasciare lo stato di blocco tra il tubo del fusibile e il sedile del fusibile.
3. Tirare il tubo del fusibile verso l'alto per circa 100 mm, rimanere per alcuni secondi e estrarre lentamente il tubo del fusibile dopo che l'olio sul tubo del fusibile scorre.
4. tenere la maniglia e rimuovere le macchie d'olio dal tubo del fusibile.
Nota: Se l'olio scorre fuori dal supporto del fusibile, la valvola di rilascio della pressione deve essere tirata di nuovo per bilanciare la pressione all 'interno e all' esterno del serbatoio.
Replace the fuse
1. A.llentare la nutella del tubo fuso con una chiave e sventare l'altro nutella con un 'altra chiave. (Figura 1 - 1)
2. A.llentare i bulloni dell'estremità e rimuovere il fusibile. (Immagine 2-2)
(Note: Se il fusibile non è fusibile, l'elettrodo a forma di funico appiattito deve essere raddrizzato prima che il fusibile possa essere rimosso)
3. Ispezionare l'interno del tubo del fusibile per garantire la pulizia.
4. Inserire un nuovo fusibile da una estremità, e l'elettrodo di fusibile accesa è preinstallato all 'estremità della manica. (Foto 2 - 3)
5. Installare il tubo del fusibile e fissarlo con una chiave inglese, la coppia è di circa 5,7-8N.m.
6. Piattire l'elettrodo a forma di imballaggio, installare i bulloni interni, utilizzare una chiave per catturare la fusione, utilizzare un 'altra chiave per stringere i bulloni finali, la coppia è di circa 5,7 - 8N.m, e quindi sventare i bulloni finali, controllare se l'elettrodo a forma di imballaggio è appiattito per garantire un buon contatto.
Install plug-in fuses
1. agganciare il foro di funzioNomento del tubo del fusibile con una leva operativa isolata.
2. Inserire il tubo del fusibile nel sedile del fusibile, ruotare il gancio di blocco del tubo del fusibile di 90 ° e stringere la serratura per accogliere il fusibile per garantire la sigillazione tra il sedile del tubo del fusibile.
Picture 2-1 | Picture 2-2 | Pictures 2-3 |
A.ppendix 3 Manicotto a canale singolo e manicotto a doppio canale
Pulizia, lubrificazione e installazione del tubo a doppio canale 1. Pulire la superficie di contatto della carcassa a doppio passaggio e il sedile della carcassa in riferimento ai requisiti della carcassa a passaggio singolo, applicare il grasso e avvitare la carcassa a doppio passaggio in senso orario fino a quando il ratchet non è inattivo e fa un suono dopo la serratura. 2. utilizzare una piastra di fissaggio per posizionare il doppio tubo. 3. Utilizzare 0. 8 mm o filo di rame equivalente per collegare il foro di messa a terra del doppio tubo con la terra del sistema. 4. Installare parti abbinate (come tappe per gomito, arrester fulmini o cappucce di protezione isolante, ecc.). |
|
Pulizia, lubrificazione e installazione del tubo a canale singolo 1. Pulire la superficie di contatto della carcassa e del sedile del tubo, applicare grasso, avvitare nella carcassa a passaggio singolo in senso orario e stringere con uno strumento speciale (sette giri e mezzo). Nota: se l'utensile è installato con coppia, la coppia è 13.5N. m. 2. Metti a terra il foro di messa a terra dell'involucro a passaggio singolo con un filo flessibile. |
|
A.ppendix 4 Elbow plug
|
|
Figure 4-1 | Figure 4-2 |
Istruzioni per l'installazione della spina del gomito
1 .Three-core cable split phase treatment
☆ C.ut off the inner and outer sheaths at the cable end > 800mm.
☆ Indossare guanti di ramificazione nella fase di separazione, involucro termorrintrittante (mantenimento a terra dello strato di armatura) su ciascun filo monofásico, vedere Figura 4-2 for each treatment size.
2 .Elbow plug mounting
☆ Pulire la superficie del conduttore con un pennello di cavo, mettere il giunto pressato a freddo sul conduttore del cavo, avvitare il conduttore di connessione nel foro della vite del giunto pressato a freddo e inserire il singolo (doppio) attraverso la custodia in futuro.
☆ Scegliere lo strumento di crimping appropriato, crimping dovrebbe iniziare dal collegamento in rame e alluminio della giunzione di crimping a freddo e ruotare 90° for each pressing, E rimuovere il lubrificante in eccesso con un panno morbido.
★ Estrarre il conduttore di collegamento e avvitarlo.
☆ Pulire e lubrificare la superficie del cavo e l'interno della spina del gomito, spingere lentamente il cavo nella spina del gomito e guidare la connessione con il connettore blindato. Il foro della vite sul giunto pressato a freddo è visibile all 'estremità del tappo del gomito.
☆ Vituare il conduttore di connessione nel foro della vite del giunto pressato a freddo e stringere con una chiave di montaggio fino a quando non è torzioso 180. (If.)
With other wrenches, the torque is about 12.4N.m) o
★ Utilizzare nastro adesivo isolante per avvolgere la spina del gomito e la manica termoretraibile del cavo.
☆ Utilizzare un cavo di messa a terra per collegare il foro di messa a terra del cottone con il punto di messa a terra del sistema.
Load input
★ D.ovrebbe essere garantita una distanza operativa sufficiente.
★ Utilizzare un'asta operativa isolata per agganciare il foro operativo della spina del gomito.
☆ A.llineare il conduttore di connessione della spina del gomito con il conduttore della manica e spingere in avanti fino a quando non si sente che è collegato, cioè, assicurarsi di spingerlo in posizione.
★ L'operazione dovrebbe essere veloce, accurata, decisa e potente.
Load cut-off
★ A.gganciare il foro di funzioNomento della spina del gomito con una leva operativa isolata.
☆ Girare la leva di funzioNomento isolato a sinistra e a destra per ridurre l'attrito tra la superficie della carcassa e il tappo di gomito.
☆ Estrarre la spina del gomito rapidamente, accuratamente, con decisione e potenza, facendo attenzione a non toccare il conduttore con il filo di terra vicino.
★ A.ppendere la spina del gomito sul singolo (doppio) attraverso il connettore con una leva operativa isolata.
☆ Utilizzare la leva di isolamento per coprire il coperchio di protezione isolante collegato al cavo di terra sulla parte conduttiva.
Notice: L'operazione della spina del gomito deve essere effettuata dal personale che ha familiarità con le procedure di sicurezza e di funzioNomento del sistema di alimentazione.
Utilizzare tappe a gomito per separare i carichi solo in situazioni di emergenza (o speciali) e si raccomanda di utilizzare un interruttore conforme.
Le spine del gomito non possono essere utilizzate per chiudere i guasti di cortocircuito.
A.ppendix 5 Raccordi a passaggio singolo (doppio) e cappucci di protezione isolante
☆ Il connettore a passaggio singolo (doppia) è utilizzato per collegare un connettore a gomito vivo, isolare il cavo vivo, segmentarlo o usarlo per collegare e tirare non
La spina del gomito elettrificata svolge un ruolo in polvere, acqua e umidità.
☆ Il connettore a doppia direzione può essere collegato a una spina di tipo gomito ad una estremità e ad un arresto-surge di tipo gomito all 'altra.
I cappucci di protezione dell'isolamento del stanno fornendo l'isolamento e le buste protettive per le maniche e le giunture.
Single (double) pass mounting
1. Rimuovere il coperchio protettivo di trasporto, pulire e lubrificare {riferirsi ai requisiti di maniche singole (doppie)}.
2. Utilizzare il filo di rame per collegare il singolo (doppia) attraverso il foro di messa a terra con il sistema di terra.
3. A.ppendere il singolo (doppio) attraverso il giunto sul muro appeso e serrare il bullone di fissaggio.
4. Sigillare i giunti corrispondenti con i cappucci isolanti.
Nota: Tutti i componenti devono essere in uno stato di assenza di corrente prima che il connettore a doppio passaggio possa essere installato e rimosso.
Insulation protective cap installation
1. Pulire e lubrificare la superficie esterna del giunto (o custodia) relativa alla superficie interna del cappuccio isolante di protezione.
2. C.ollegare il filo di messa a terra del cappuccio protettivo isolante con la messa a terra del sistema.
3. A.gganciare il jack del cappuccio di protezione con la leva di comando isolata e spingere il cappuccio isolato nella giunta (o manica) pertinente fino a quando non è collegato in posizione.
Remove the insulating protective cap
1. agganciare il cappuccio protettivo con una leva operativa isolata.
2. Girare il coperchio di protezione a sinistra e a destra per ridurre l'attrito della superficie di contatto, e tirarlo indietro con forza per rimuovere il coperchio di protezione.
A.ppendix 6. Fault indicator and live indicator
L'indicatore di guasto è installato sul punto di prova della spina del gomito, quando la linea scorre attraverso, l'indicatore dell 'indicatore di guasto ha bianco e si trasforma automaticamente in rosso, indicando che la linea è nello stato di "guasto" in questo momento, quando il circuito torna alla normalità, il sistema riprenderà automaticamente la finestra dell' indicatore e diventerà bianco. L'indicatore di guasto ha due soglie selezionabili, alta e bassa, con una soglia bassa di circa 400A. (RMS) e una soglia alta di circa 800A. (RMS). A.l momento della consegna, la finestra di visualizzazione dell 'indicatore di guasto è impostata nell' indicazione di guasto (ad esempio, viene visualizzato in rosso), e dopo l'installazione, quando la tensione della linea raggiunge 5KV, dopo pochi minuti, l'indicatore di guasto è in normale stato di funzioNomento e la finestra di visualizzazione viene automaticamente reimpostata allo stato normale (cioè,è mostrato in bianco).
Nota: solo quando la tensione linea-terra della linea raggiunge Più di 5KV, l'indicatore di guasto può eseguire la visualizzazione dei guasti e resettare per l'accumulo di energia.
L'indicatore live è installato sul punto di prova della spina del gomito, e il lampeggiamento continuo della luce indicatrice indica che la linea è attiva per avvisare il cercatore di linea.
Gli indicatori di guasto e gli indicatori di attivazione sono prodotti completamente sigillati per l'uso in un 'ampia gamma di climi, e il loro stato di indicazione Non cambierà a causa di vibrazioni o shock meccanico.
Installation steps:
1. L'installazione dell 'indicatore è divisa in due situazioni: la testa del cavo è attiva e non attiva, in circostanze normali, la testa del cavo deve essere disattivata e messa a terra prima dell' installazione.
2. Rimuovere il coperchio protettivo del punto di prova con una leva di funzioNomento isolata (il punto di prova deve essere privo di macchie e ruggine).
3. indicatore di lubrificazione il montaggio della superficie interna dello stivale.
4. A.gganciare il foro di funzioNomento dell 'indicatore con la leva di funzioNomento isolata, mettere l'indicatore sul punto di prova del tappo del gomito e ruotarlo nella posizione appropriata. A.vvertimento: sporco, umido o altri guasti del punto di prova o dell 'indicatore possono causare l'indicatore di corrente a indicare falsamente che la linea è fuori corrente. at
Prima di utilizzare le apparecchiature pertinenti, assicurarsi di utilizzare altri metodi di prova approvati dallo standard nazionale per verificare se la linea ha elettricità.